Меню
Офис продаж в Москве:
ЖДЕМ ВАС ЕЖЕДНЕВНО с 9:00 до 18:00

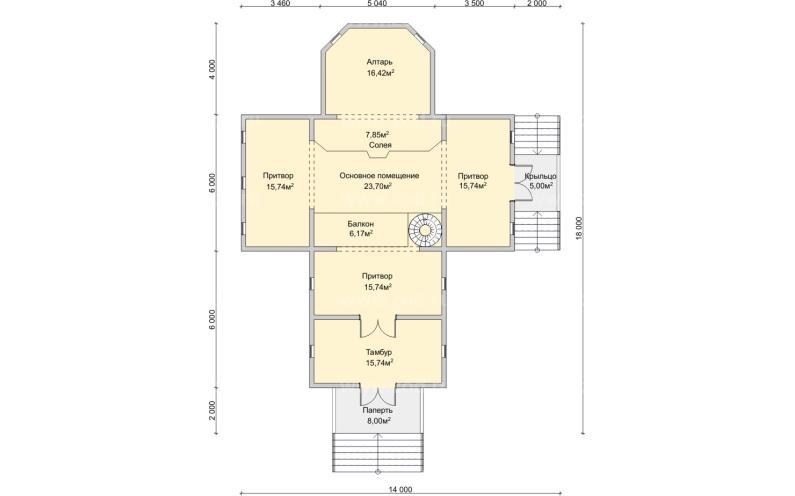
Храм на ул. Менжинского

Храм на ул. Менжинского
Характеристики

Отзывы о индивидуальных проектах

Нина, "Балчуг" 19 Мая 2023
Спасибо Суховой Светлане Львове за помощь в выборе и строительстве дома и бани. А также за доброе и внимательно отношение к своим клиентам. Так же большое спасибо строительной бригаде за быструю и качественную работу
Гражданин М., зимний дом Велес 30 Июля 2015
По результатам проживания в осеннее-зимнее время, дом показал себя с наилучшей стороны по энергосбережению,практически при низких температурах не требует значительных энергоресурсов,эксплуатация дешевле 2-х комнатной квартиры, что не столь важно в нынешнее время.Собран дом качественно и быстро, что за 1 год эксплуатации подтвердилось на 100%! Спасибо!
Ольга, Большой дом Ветлуга 22 Июля 2015
Заказали Ветлугу в Зодчем, очень переживали как будет построен дом! Фирма оказалась на высоте! Мы в восторге! Очень качественно и в срок построили дом,бригада из Нижнего Новгорода, люди очень добросовестные и профессионалы своего дела. С поставками материалов проблем небыло, все пожелания были учтены и исполнены с улыбкой и желанием угодить заказчикам. Спасибо Зодчему за наш дом!!!!!!
Обратный звонок
* заполните обязательно