Меню
Офис продаж в Москве:
ЖДЕМ ВАС ЕЖЕДНЕВНО с 9:00 до 18:00

Валдай 5.4

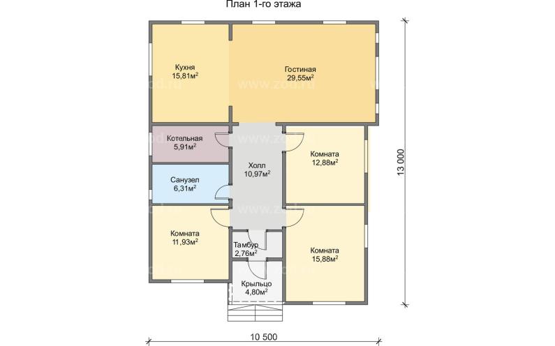
Валдай 5.4 10.5 x 13.0 112.59 м²
Характеристики
  • Общая площадь: 112.59 м2
  • Площадь застройки: 123.00 м2
  • Размеры: 10.5 x 13.0 м
  • Срок строительства: 20-25 дней
  • 2
    Санузла
  • 3
    Спальни

Выберите технологию

Выберите комплектацию

7919800 руб.
9169800 руб.
10569800 руб.
Цена
7 919 800 руб.
цена при заказе до 30 января

7 682 206 руб.

Одноэтажные дома серии «Валдай» выполнены в скандинавском стиле, для которого характерна лаконичная архитектура фасада, пологая двускатная кровля с широкими выносами, минимум декоративных деталей и максимум удобств.  Внутренние помещения отличаются продуманной планировкой, где задействован каждый сантиметр площади.
Дом идеален для семей с маленькими детьми, а также для пожилых людей, которым сложно подниматься по лестнице.

Характеристики
  • Общая площадь: 112.59 м2
  • Площадь застройки: 123.00 м2
  • Размеры: 10.5 x 13.0 м
  • Срок строительства: 20-25 дней
Теплый дом

Добавить инженерный пакет

Теплый дом +

Добавить инженерный пакет

Аляска

Добавить инженерный пакет

Дом с подготовкой под чистовую отделку Дом "под ключ" Энергоэффективный дом
Фундамент Ленточный монолитный Фундамент в подарок Свайный винтовой ниже глубины промерзания Фундамент в подарок Свайный забивной железобетонный ниже глубины промерзания
Усиленная конструкция пола с подготовкой под финишную отделку Усиленная конструкция пола, настил пола - доска 35 мм Усиленная конструкция пола, настил пола - доска 35 мм
Усиленная конструкция перекрытий Усиленная конструкция перекрытий Усиленная конструкция перекрытий
Стены Брус клееный профилированный 150 на 142 мм Стены Брус клееный профилированный 170 на 142 мм антисептированный Стены Брус клееный профилированный 210 на 142 мм антисептированный
Перегородки Брус клееный 84 на 142 мм Перегородки Брус клееный 84 на 142 мм Перегородки Брус клееный 84 на 142 мм
Утепление Пол 150 мм; Потолок 150 мм Утепление Пол 150 мм; Потолок 150 мм Утепление Пол 200 мм; Потолок 200 мм
Отделка фронтонов снаружи имитация бруса Отделка фронтонов снаружи имитация бруса Отделка фронтонов снаружи имитация бруса
Подготовка под финишную отделку потолков Отделка потолков вагонкой Отделка потолков вагонкой
Гидроизоляция санузлов с подготовкой под укладку плитки Гидроизоляция санузлов с подготовкой под укладку плитки
Окна пластиковые однокамерные Окна пластиковые однокамерные Окна пластиковые двухкамерные
Устройство системы вентиляции кухни и санузлов
Входная дверь металлическая Входная дверь металлическая
Обработка конструкции пола огнебиозащитой Обработка конструкции пола огнебиозащитой
Кровля профлист оцинкованный Кровля Металлочерепица Кровля Металлочерепица
7 919 800 руб.
9 169 800 руб.
10 569 800 руб.
* действителен при покупке в комплектации "Теплый дом+", "Аляска", "4 сезона", "4 сезона+" и "Зимняя"
Характеристики
  • Общая площадь: 112.59 м2
  • Площадь застройки: 123.00 м2
  • Размеры: 10.5 x 13.0 м
  • Срок строительства: 20-25 дней
  • 2
    Санузла
  • 3
    Спальни

Выберите технологию

Выберите комплектацию

Цена
7 919 800 руб.
цена при заказе до 30 января

7 682 206 руб.

Отзывы о больших домах

Нина, "Балчуг" 19 Мая 2023
Спасибо Суховой Светлане Львове за помощь в выборе и строительстве дома и бани. А также за доброе и внимательно отношение к своим клиентам. Так же большое спасибо строительной бригаде за быструю и качественную работу
Ольга, Большой дом Ветлуга 22 Июля 2015
Заказали Ветлугу в Зодчем, очень переживали как будет построен дом! Фирма оказалась на высоте! Мы в восторге! Очень качественно и в срок построили дом,бригада из Нижнего Новгорода, люди очень добросовестные и профессионалы своего дела. С поставками материалов проблем небыло, все пожелания были учтены и исполнены с улыбкой и желанием угодить заказчикам. Спасибо Зодчему за наш дом!!!!!!
Федорова Анна Евгеньевна, Коттедж Карелия 3 26 Марта 2015
Добрый день. Наша семья решила построить дачный дом. Долго не могли определиться с компанией, и друзья нам порекомендовали компанию Зодчий. Мы заключили договор и не пожалели. Строительная бригада прибыла даже раньше положенной даты на две недели. Трудились добросовестно, ответственно и качественно выполняли свою работу с 7 утра и до темноты. С поставкой материалов задержек не было. За 45 дней бригада возвела нам дом Карелию 3-1(каркасник). Договор №40104133-ИК (место строительства: с. Добрыниха, Домодедовский р-н. М.О.) Большое спасибо строителям: бригадиру Солнышкину Владимиру Алексеевичу и его ребятам Степану и Александру за хороший дом. Хотелось бы, чтобы руководство компании отметило хорошую работу бригады премией.
Обратный звонок
* заполните обязательно